永磁減速同步電機直驅單繩纏繞式提升機
發布時間:2022-12-02來源:礦井提升機點擊:11121

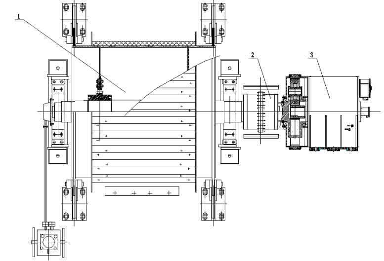
為推進礦井提升機系統的智能化、數字化提升,擴大節能提升機的綠色供給,我公司研發了永磁減速同步電機直驅礦井提升機,其安裝結構形式見下圖。
永磁減速同步電機的輸出軸與礦井提升機主軸通過聯軸器直聯。該結構體積小、噪聲小,傳動精度高、功率密度大,性價比高,安裝便利,維護簡單,節能效果顯著。
提升機配套永磁電機功率范圍:200千瓦--3000千瓦。

1、提升機(可為單繩或多繩摩擦式)
2、聯軸器
3、永磁減速同步電機
